广州橡胶大院改造吸引投资客 80万房产120万转卖
橡胶大院片区改造修改方案于近日出炉。修改方案显示,改造涉及的蛟腾小区去留尚未确定,有保留整治和拆迁安置两种方案,目前正在接受意见反馈。

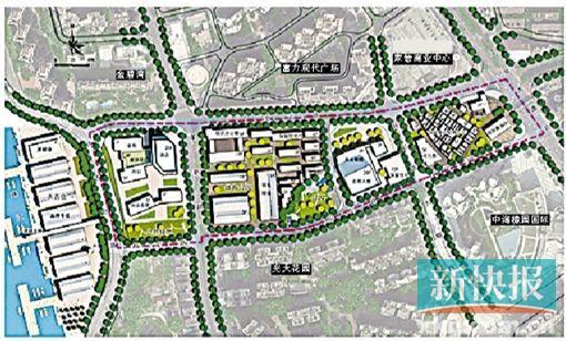
■蛟腾小区去留待定。

80多万房产三个月转手两次卖到120多万
橡胶大院片区改造修改方案于近日出炉。修改方案显示,改造涉及的蛟腾小区去留尚未确定,有保留整治和拆迁安置两种方案,目前正在接受意见反馈。因为地段优越,生活配套方便,橡胶大院周边二手房交投市场十分活跃,以光大花园、中海锦榕湾为代表的二手小区,最高售价超过4万元/平方米。就算是楼龄达到二三十年的楼梯楼也有不少青睐者,这部分房屋售价达到1.8万-2万元/平方米。据中介人士介绍,早在去年8月份,在改造范围内的一套楼梯楼就曾在三个月转手两次,溢价达近40万元。
蛟腾小区去留未定
橡胶大院片区的改造范围为93800平方米,包括金沙路以南、工业大道以西、光大花园以北、太古仓以东。改造片区紧挨地铁8号线以及广佛线交会站沙园站,周边有大型购物商场乐峰广场、永旺超市。并与江边太古仓码头仅一路之隔,地段优势十分优越。
第二次公示的规划方案较第一次相比,地块性质做了部分调整。增加了部分绿化用地,有些地块则从商业用地调整为商务用地。改造部分涉及的住宅均以房改房等一些旧住宅楼为主。根据规划图显示,不少住宅楼得以保留,值得关注的是,位于金沙加油站西侧的蛟腾小区目前去留仍然未定。根据批示的方案一显示,保留整治蛟腾小区,原来控规的AH0116地块由公园绿地调整为二类居住用地,容积率按照现状调整为2.0。方案二显示,拆迁安置蛟腾小区,原控规AH0116地块由公园绿地调整为二类居住用地,容积率调整为4.5。规划图显示,如果选择拆迁安置方案,或将在原地建造3栋40层超高层建筑。
业主:补偿合理就同意拆迁
实际上蛟腾小区建筑时长不一,且内部房屋构成复杂,有较大一部分的房屋属于市民自建房屋,另有一部分房屋则属于广州市橡胶集团大院的员工宿舍。甚至有居民表示还有祖上传下的祖屋。
虽然房屋众多,但是要找到小区的入口却不太容易。在经过一番问询后,记者找到了正对着金沙路的入口,门口安装了一扇新的不锈钢门。“这门也是近期才装的,小区也没有物业管理。”居民向记者反映。
进入小区左边可以看到张贴出来的规划修改方案。余阿姨老公就是橡胶集团大院的退休员工,一家人在此处拥有一栋楼,总面积大概119平方米。对于张贴出来的规划修改方案,余阿姨在听了儿子的解释后似乎明白了大概。“只要补偿合理,我们还是同意拆迁的,这里环境卫生也不好。” 记者抬头望了一下眼前的房屋,楼龄在30年上下的房子,到处是裸露的电线,巷口的垃圾桶周边散落着各种垃圾,卫生环境确实并不理想。
转自:橡胶技术网,橡胶行业门户网站!
- 印度东北部将成为该国橡胶生产中心区2021-12-15 11:12:12
- 泰国拨款100亿泰铢用于橡胶价格保证计划,以保障胶农收入2021-12-03 11:12:19
- 康迪泰克(中国)2.3亿元胶管项目,竣工验收2021-11-30 10:11:00
- 打造一流的跨国现代农业集团2021-11-30 09:11:58
- 广东农垦建垦70周年贺信2021-11-30 09:11:41
- 橡胶产业拓荒记:从荒山垦植到笑傲资本——纪念广东农垦70周年2021-11-30 09:11:56
- 橡胶产业变形记——从为国植胶到全球配置资源2021-11-30 09:11:29
- 50万公里,“稀土金”轮胎通过鉴定!12-08
- 科创板,迎来首家橡胶制品上市企业!12-08
- 扛不住了!原材料疯涨,产能紧张,轮胎12月份涨价已成定局!11-19
- 张立群教授当选中国工程院院士11-19













